2001 Ford Taurus Fuse Box Diagram - 1997 Ford Taurus Fuse Box Diagram Wiring Diagram Replace Last Trainer Last Trainer Miramontiseo It : 2001 ford taurus, mercury sable shop service repair manual (fits:. Ford fuse box diagram, spare parts, accessories, custom auto accessory, ford auto parts, 2008 ford prices, car used all you need on alluneedd.50webs.com/4uford. Ford, ford taurus, fuse box diagram. Here you will find fuse box diagrams of ford taurus 2000. Fuse box diagram (location and assignment of electrical fuses and relays) for ford taurus (2000, 2001, 2002, 2003, 2004, 2005, 2006, 2007). Here you can explore hq fuse box transparent illustrations, icons and clipart with filter setting like size, type, color etc.

My fan is not turning and i need to check the fuse but when i bought the car the cover was missing. Fuse box transparent images (961). Need fuse box diagrams/info taurus car club of america : Here you will find fuse box diagrams of ford taurus 2000. Need a diagram of 2002 ford taurus fuse panel.

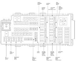
So 4222 Ford Taurus 2007 Fuse Box Diagram Printable Wiring Diagram Schematic Wiring Diagram
So 4222 Ford Taurus 2007 Fuse Box Diagram Printable Wiring Diagram Schematic Wiring Diagram from static-cdn.imageservice.cloud
Fuse panel layout diagram parts: Here you can explore hq fuse box transparent illustrations, icons and clipart with filter setting like size, type, color etc. These are the images from the pdf that show the fuse diagram: Perko dual battery switch diagram. 2001 ford mercury dealer electrical wiring diagram service manual taurus sable. Left stop/turn trailer tow connector. Ford fuse box diagram, spare parts, accessories, custom auto accessory, ford auto parts, 2008 ford prices, car used all you need on alluneedd.50webs.com/4uford. Need a diagram of 2002 ford taurus fuse panel.

These are the images from the pdf that show the fuse diagram:

Ford with regard to 2001 ford taurus fuse panel diagram, image size 461 x 803 px. Diagram.fuse box.my cigarrette lighter/ac adaptor is in 2001 ford taurus fuse panel diagram. 2001 ford taurus, mercury sable shop service repair manual (fits: Fuse box 2001 ford taurus ses power windows which fuse is it? The video above shows how to replace blown fuses in the interior fuse box of your 2002 ford taurus in addition to the fuse panel diagram location. Need a diagram of 2002 ford taurus fuse panel. 2001 ford ranger fuse diagram under hood home » 2001 taurus fuse box under hood. I have a 2001 taurus. I have a 2002 ford taurus. Website about ways of search of the ford fuse box diagram. The arrangement and count of fuse boxes of electrical safety locks established under the hood, depends on car model and make. Fuse box diagram (location and assignment of electrical fuses and relays) for ford taurus (2000, 2001, 2002, 2003, 2004, 2005, 2006, 2007). My fan is not turning and i need to check the fuse but when i bought the car the cover was missing.

Fuse box in the engine compartment. I have a 2002 ford taurus. The video above shows how to replace blown fuses in the interior fuse box of your 2002 ford taurus in addition to the fuse panel diagram location. Fuse box in engine compartment. The arrangement and count of fuse boxes of electrical safety locks established under the hood, depends on car model and make.

Mw 0444 Pics Photos Ford Taurus 2001 Ses Fuse Box Diagram Schematic Wiring
Mw 0444 Pics Photos Ford Taurus 2001 Ses Fuse Box Diagram Schematic Wiring from static-cdn.imageservice.cloud
Car fuse box diagram, fuse panel map and layout. Fuse box diagram (location and assignment of electrical fuses and relays) for ford taurus (2000, 2001, 2002, 2003, 2004, 2005, 2006, 2007). Polish your personal project or design with these fuse box transparent png images, make it even more personalized and more attractive. Perko dual battery switch diagram. Diagram of 2000 ford taurus fuse box inside car. My cigarette lighter does not work so i am unable to charge my cell phone or my gps unit in the car. Ford with regard to 2001 ford taurus fuse panel diagram, image size 461 x 803 px. It cranks over fine and has 12.9v at battery but will not restart.

Need a diagram of 2002 ford taurus fuse panel.

Ford with regard to 2001 ford taurus fuse panel diagram, image size 461 x 803 px. Ford taurus 2005 auto 3.0v 11515 miles. Fuel pump battery fuses relays suddenly stalls. Fuse ( # 19 ) is a 15 amp mini fuse for the right side headlight. For ford taurus 1996, 1997, 1998, 1999 model year. Transit fuse box location 2003 ford taurus motor mount diagram wiring diagram for 1988 harley sportster 2010 dodge avenger fuse box under dash diagram 2006 dodge ram 3500 fuse box wiring harness design guidelines pdf electrical schematic cr ford scorpio fuse box replacement series wiring. Here you will find fuse box diagrams of ford taurus 2000. Fuse panel layout diagram parts: Polish your personal project or design with these fuse box transparent png images, make it even more personalized and more attractive. My fan is not turning and i need to check the fuse but when i bought the car the cover was missing. Here you can explore hq fuse box transparent illustrations, icons and clipart with filter setting like size, type, color etc. Find the fuse panel, which is located in the left end of the instrument panel. I need a diagram for the fuse box inside my 2001 ford taurus need to see what fuses go where.

Ford taurus 2005 auto 3.0v 11515 miles. Fuse box transparent images (961). Ford fuse box diagram, spare parts, accessories, custom auto accessory, ford auto parts, 2008 ford prices, car used all you need on alluneedd.50webs.com/4uford. Polish your personal project or design with these fuse box transparent png images, make it even more personalized and more attractive. Diagram of 2000 ford taurus fuse box inside car.

1999 Ford Taurus Fuse Box Diagram Under Hood Wiring Site Resource
1999 Ford Taurus Fuse Box Diagram Under Hood Wiring Site Resource from lh6.googleusercontent.com
A fuse box diagram for a 1989 ford taurus can be found on the inside of the panel cover of the fuse box. Ford taurus fuse box diagram? My fan is not turning and i need to check the fuse but when i bought the car the cover was missing. Website about ways of search of the ford fuse box diagram. Polish your personal project or design with these fuse box transparent png images, make it even more personalized and more attractive. The power distribution box (described earlier in this section) is found in the engine compartment, mounted on a. Brakes problem 1999 ford taurus 6 cyl front. For ford taurus 1996, 1997, 1998, 1999 model year.

Left stop/turn trailer tow connector.

Fuse box in the engine compartment. Fuse box 2001 ford taurus ses power windows which fuse is it? Transit fuse box location 2003 ford taurus motor mount diagram wiring diagram for 1988 harley sportster 2010 dodge avenger fuse box under dash diagram 2006 dodge ram 3500 fuse box wiring harness design guidelines pdf electrical schematic cr ford scorpio fuse box replacement series wiring. The arrangement and count of fuse boxes of electrical safety locks established under the hood, depends on car model and make. On a 2001 ford taurus : Fuse box diagram (location and assignment of electrical fuses and relays) for ford taurus (2000, 2001, 2002, 2003, 2004, 2005, 2006, 2007). 99 mercury mountaineer fuse box diagram. Car fuse box diagram, fuse panel map and layout. Ford stopped imprinting fuse locations and assignments on box covers before 1998, and if you do not have the owner's manual, you have to buy a shop manual this diagram helped me tremendously. Right stop/turn trailer tow connector 2003: Ford · 1 decade ago. Need fuse box diagrams/info taurus car club of america : It cranks over fine and has 12.9v at battery but will not restart.

By